Mieszkanie, Skrzetusko
Skrzetusko, Bydgoszcz, kujawsko-pomorskie
- 39,05 m²
Mieszkanie, Skrzetusko
Skrzetusko, Bydgoszcz, kujawsko-pomorskie
zaktualizowane:
5 stycznia 2017
Mieszkanie, Skrzetusko
Zaktualizowane: 5 stycznia 2017
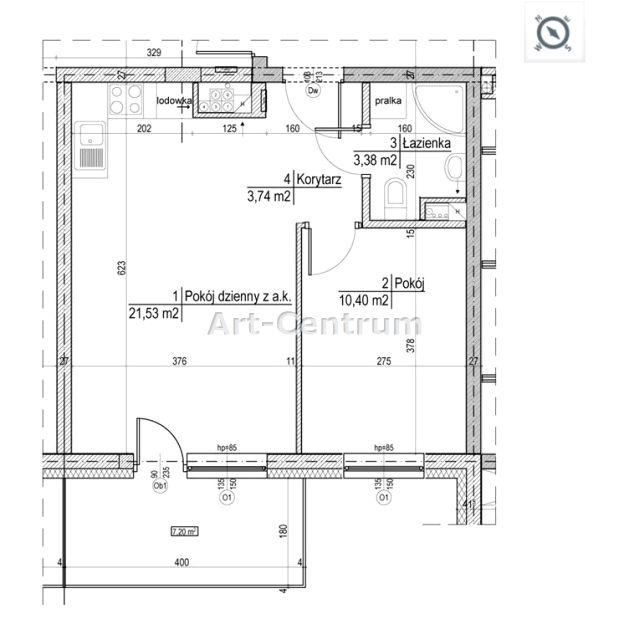
39,05 m²
4/5
2
2017
-
do wykończenia
Piętro:
4/5Liczba pokoi:
2Rok budowy:
2017Miejsce parkingowe:
-Stan mieszkania:
do wykończeniaSzczegóły ogłoszenia
- Typ oferty: mieszkanie na sprzedaż
- Rynek: pierwotny (zobacz inne nowe mieszkania w Bydgoszczy)
- Dostępne: natychmiast
- Forma własności: własność
- Charakterystyka mieszkania: 39,05 m², 2 pokoje, 1 łazienka; stan: do wykończenia
- instalacje: nowe / wymienione; okna: nowe / wymienione, plastikowe
- Budynek: blok mieszkalny; rok budowy: 2017
- technika budowy: nowa technologia
- winda
- Rozkład mieszkania: piętro 4/5, narożne, jednopoziomowe
- Powierzchnia dodatkowa: balkon (7,20 m²)
- Kuchnia: aneks kuchenny
- Media: ogrzewanie: miejskie, centralne ogrzewanie
- Internet, telefon, telewizja kablowa
- Bezpieczeństwo: drzwi antywłamaniowe, monitoring/kamery, teren ogrodzony
- Miejsce parkingowe: brak przynależnego miejsca parkingowego
- Źródło: biuro nieruchomości: Art-Centrum Nieruchomości Sp. z o.o., zaktualizowane: 05.01.2017
- numer ogłoszenia: ART-MS-111508
Lokalizacja
- Adres: Skrzetusko, Bydgoszcz, kujawsko-pomorskie
- Otoczenie: osiedle domów wielorodzinnych
- cicho
- W pobliżu: przystanek autobusowy, przystanek tramwajowy
Opis nieruchomości
# Osiedle nawiązuje swoją urbanistyką do osiągnięć projektanta Georgsa Haussmana, który w połowie XIX przebudował Paryż.
Kompleks budynków na terenie ogrodzonym. Przestronne klatki schodowe , nowoczesna technologia jak np. światłowody, wideodomofony, podgląd monitoringu w TV, windy cichobieżne, które można przywołać z mieszkania na wskazane piętro.
Mieszkania w metrażach od 38 m2 do 102 m2. (...)

